最新三层别墅设计图纸(宅基地11X11米,怎么设计一栋三层别墅)
题主提问:宅基地11X11米,怎么设计一栋三层别墅?这个问题问我们可算是问对人了,农村自建房设计,我们是专业的。类似尺寸的图纸,我们之前为粉丝设计过很多,接下来就直接给大家上图纸吧。
第1套:挑空客厅+落地窗+大露台,3层欧式美宅,主体预算50万
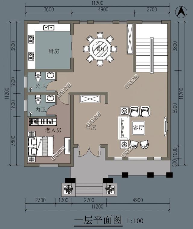
蓝色坡屋顶搭配素质真石漆,再结合大气的门斗以及通透的落地窗,这是欧式建筑最为经典的模样。玄关、客厅、套卧位于南侧,玄关处设计L型软隔,防止开门见山。客厅设计在房屋西面,西南两面全墙落地窗,采光不受限,一眼就能看到室外美景。餐厨以及储藏室位于北侧,厨房单独设立了一个入户门,让进出更为方便。
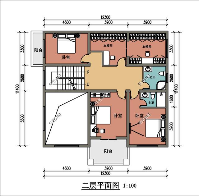
二层一共设计了三间卧室,两间衣帽间,方便归置家中衣物。三层设立三个卧室,加上一个休闲区域,为家人打造更为私密的活动空间。
第2套:双客厅+大阳台+落地窗,三层平顶简约农村住宅,主体预算40万
这套户型兼具了中式风格的古朴素雅与现代风格的简约时尚,外观利用最简单的黑白色搭配,加上几何造型打造极简主义气质。而细节处的设计古朴大方,蕴含的中式元素又让住宅带上了几分古朴意蕴。平屋顶造型减少了施工难度,适合农村地区修建。
户型室内空间分割明确,入户玄关西侧紧贴客厅,餐厅、厨房设计在北侧,利用过道连接客厅,布局非常合理。一层设立了两个卧室,方便老人起居。二层南向也布置了一个大客厅,为老人打造一个更为私密的休闲空间。整栋房子共设7个卧室,足以满足日常使用。
第3套:大客厅+多卧室+休闲阳台,创意时尚现代风别墅,主体预算50万
这套别墅外观造型新颖,利用色彩与立面元素打造的现代风别墅看点十足。柔和的象牙白与深沉的乌青色相搭配,时尚中带着几分复古韵味。再加上造型感十足的立柱,还有那时尚大气的窗户设计,整体颜值非常高。
入户设计一个大小合适的堂屋,既符合农村的居住需求,又合理节约了室内面积。南向大客厅面积宽敞,视野开阔,与客厅等区域连通,显得室内更加宽敞通透。一层也设立了一间老人房,方便家中老人起居。二层三层布局相似,东南方向均设计舒适的起居室,丰富家人的休闲娱乐生活。南向主卧带书房,让家中孩子有一个安静的地方写作业。
想看更多农村别墅设计,可以关注头条号:回乡盖别墅。
